Motif Luxe | Header

Good afternoon. Welcome to 227 Rockwell Street, Norwich, CT

$399,900
3
Beds
3.00
Baths
2,004
SqFt
0.17
Acres

Pricing Insight: Originally listed for $399,900, the price has remained unchanged for approximately 31 days. This property has been on the market for approximately 31 days. MLS reports 12 Days on Market (DOM) before it went under contract.

227 Rockwell Street, Norwich, CT is a 3-bed, 3-bath, 2,004 square foot home built in 1895 , featuring colonial architecture.

This home is within the Norwich school district. Local, with nearby schools including Per Board of Ed.

MLS #: 24152846

Offered Price: $399,900

Residence Type: Single Family

Architectural Style: Colonial

Living Area: 2,004 Sq. Ft.

Lot Size: 0.17 Acres

Neighborhood: N/A

County: New London

Year Built: 1895

Design & Construction: Frame

Heating: Steam

Cooling: Window Unit

Garage Spaces: 1

Price per Sq Ft as listed: $200

Estimated Tax: $6,427

Days on Market: 12

$200,000
2 Beds · 1 Baths · 1,080 Sq Ft
40 Beech Street, Norwich
$26,750
0 Beds · 0 Baths · 0 Sq Ft
Vine Street, Norwich
$252,400
3 Beds · 2 Baths · 1,184 Sq Ft
182 Broad Street, Norwich

Home Automation: Not specified

Energy Features: Not specified

Solar Contract: Not specified

Heating Fuel: Electric, Natural Gas

Fuel Type: Steam

Fuel Tank Location: Not specified

Cooling System: Window Unit

Hot Water System: Upright Tank

Air Radon Mitigation: Not specified

Water Radon Mitigation: Not specified

Price per square foot: $200 / Sq. Ft.

Tax assessed value: $158,800

Estimated Tax: $6,427

Architectural Style: Colonial

Design & Construction: Frame

Residence Type: Single Family

Year Constructed: 1895

Living Area: 2,004 Sq. Ft.

Lot Size: 0.17 Acres

Fuel: Electric,Natural Gas

Loading valuation...

Loading automated valuation...

AUTOMATED VALUATION ESTIMATE

Powered by Realtors Property Resource® (RPR)

Note: Computer-generated estimate, not an appraisal.

Understanding This Valuation

The RPR AVM considers:

  • Recent sales of comparable properties
  • Property characteristics and location
  • Market trends in Norwich
  • Statistical modeling algorithms
Local Market Context
Active Listings: 106
Average Price: $244,993
Average DOM: 12 days

Complimentary CMAs, no obligation

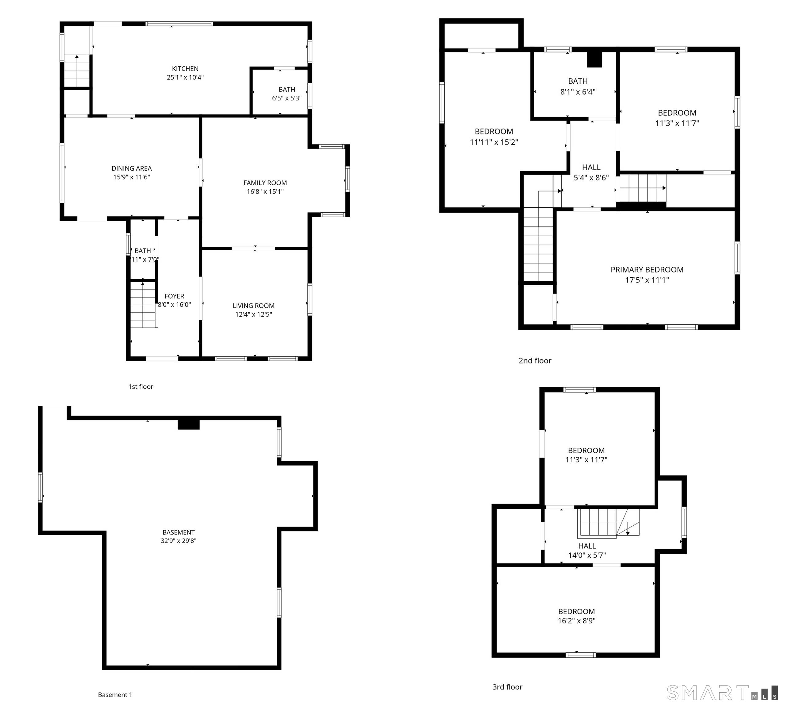
Set on a quiet, tree-lined street directly across from Mohican Park, this charming, antique Colonial (circa 1895) blends timeless character with modern updates. On the main level you will find beautiful architectural details including 9-foot ceilings, crown molding, hardwood floors, French doors and built-ins. With over 2,000 square feet, there is plenty of room for all to enjoy. The main level features a lovely sitting room, a cosy living room with built-ins, a dining room and a large eat-in kitchen with SS appliances. You will find one full bath and one half bath on this level. There are three spacious bedrooms on the upper level with 2 additional rooms (being used as bedrooms) in the finished attic. Another full bath is located on the upper level as well. New updates include a gas boiler (2024), hot water heater (2025) and exterior paint (2023). An oversized one car garage adds everyday convenience with room for car and/or storage, motorcycle etc. The private backyard provides a wonderful setting for entertaining friends, perfect for summer get togethers. With scenic views and easy access to outdoor recreation just steps from your front door, this home is a wonderful opportunity to own a beautiful home in an exceptional location.

Continue reading ▾

Flood Risk Assessment Water Body Detected Nearby

Water Proximity Detected: This property exhibits indicators suggesting nearby or referenced water features
Location Analysis:
Water features noted
Water Proximity:
Near water body
Topography:
Standard terrain • 0.2 acres
Water Indicators Found:
  • Water-related features referenced in listing details
Recommendations:
  • Professional flood assessment advised
  • Based on identified water-related indicators, flood insurance may warrant consideration
  • Consult FEMA Flood Maps for zone verification
  • Evaluate drainage systems
  • Review local flood history
Risk Level: Moderate

Property near water bodies. Consider flood insurance.

Walkability Score: calculating…
Motif Lifestyle Score: calculating…

Amenity Access Summary

  • Dining & Café Access: Low to Moderate
  • Daily Services: Limited
  • Recreational Space: Limited Nearby
How These Scores Are Calculated

These scores reflect the proximity and concentration of nearby amenities, measured against a typical town-center environment.

  • Walkability emphasizes access to daily necessities such as groceries, pharmacies, banking, and routine services.
  • Motif Lifestyle emphasizes dining, cafés, parks, and leisure destinations that contribute to neighborhood character and quality of life.

All scores are normalized on a 0–100 scale to allow consistent comparison across different locations.

106

Homes For Sale

$244,993

Average List Price

Mechanicals & Utilities: Steam • Electric,Natural Gas • Window Unit • Public Water Connected water

Exterior Features

Exterior Construction: Wood

Roof Type: Asphalt Shingle

Foundation: Masonry,Stone

Garage: Detached Garage (1 car)

Utilities: Water: Public Water Connected

Only motif connects you to a certified
"Local Market Expert"

Agent Photo
Steve Simos
Real Estate Advisor
Norwich • Connecticut Shoreline
Licensed Real Estate Agent – Connecticut
Broker Logo

 Verified Motif Advisor
Good afternoon Steve, I'm interested in
227 Rockwell Street, Norwich, Connecticut
By proceeding, you consent to receive calls and texts at the number you provided, and artificial voice, and email, from motif about your inquiry and similar properties. Your personal information will never be sold or given to a 3rd party.
Agent Photo
Steve Simos
george@appzentric.com
800-555-0003
Presented by motif • Source: MLS • Listed by: Christina King • Connecticut Real Estate Group LLC • MLS# 24152846