Motif Luxe | Header

Good morning. Welcome to 29 Mountain Laurel Court, Cromwell, CT

$235,000
2
Beds
2.00
Baths
1,365
SqFt
0.00
Acres

Pricing Insight: Originally listed for $235,000, the price has remained unchanged for approximately 5 days. This property has been on the market for approximately 5 days.

Unit 29 at 29 Mountain Laurel Court, Cromwell, CT is a 2-bed, 2-bath, 1,365 square foot home built in 1973 , featuring townhouse architecture. This residence is part of a 316-unit community. This home is part of a homeowners association, with dues of $412 paid monthly. The HOA fee includes: club house, tennis, grounds maintenance, trash pickup, snow removal, pest control, pool service, and road maintenance. Community amenities include: club house, guest parking, pool, and tennis courts.

This home is within the Cromwell school district. Local, with nearby schools including Per Board of Ed.

MLS #: 24153492

Offered Price: $235,000

Residence Type: Condo/Co-Op

Architectural Style: Townhouse

Living Area: 1,365 Sq. Ft.

Lot Size: 0.00 Acres

Neighborhood: N/A

County: Middlesex

Year Built: 1973

Design & Construction: Frame,Brick

Heating: Baseboard

Cooling: Ceiling Fans,Central Air

Garage Spaces: 0

Price per Sq Ft as listed: $172

Estimated Tax: $3,729

Days on Market: 4

$2,200
2 Beds · 2 Baths · 1,365 Sq Ft
41 Mountain Laurel Court, Cromwell
$2,100
2 Beds · 2 Baths · 1,365 Sq Ft
10 Briar Court, Cromwell
$174,900
1 Beds · 1 Baths · 804 Sq Ft
22 Linda Court, Cromwell
$299,900
2 Beds · 2 Baths · 1,448 Sq Ft
10 Clubhouse Drive, Cromwell
$240,000
2 Beds · 2 Baths · 1,365 Sq Ft
3 Bayberry Court, Cromwell
$229,900
2 Beds · 2 Baths · 1,365 Sq Ft
17 Hemlock Court, Cromwell

Home Automation: Not specified

Energy Features: Programmable Thermostat

Solar Contract: Not specified

Heating Fuel: Electric

Fuel Type: Baseboard

Fuel Tank Location: Not specified

Cooling System: Ceiling Fans, Central Air

Hot Water System: Electric, Domestic

Air Radon Mitigation: Not specified

Water Radon Mitigation: Not specified

Price per square foot: $172 / Sq. Ft.

Tax assessed value: $121,100

Estimated Tax: $3,729

Architectural Style: Townhouse

Design & Construction: Frame,Brick

Residence Type: Condo/Co-Op

Year Constructed: 1973

Living Area: 1,365 Sq. Ft.

Lot Size: 0.00 Acres

Fuel: Electric

Loading valuation...

Loading automated valuation...

AUTOMATED VALUATION ESTIMATE

Powered by Realtors Property Resource® (RPR)

Note: Computer-generated estimate, not an appraisal.

Understanding This Valuation

The RPR AVM considers:

  • Recent sales of comparable properties
  • Property characteristics and location
  • Market trends in Cromwell
  • Statistical modeling algorithms
Local Market Context
Active Listings: 29
Average Price: $150,748
Average DOM: 4 days

Complimentary CMAs, no obligation

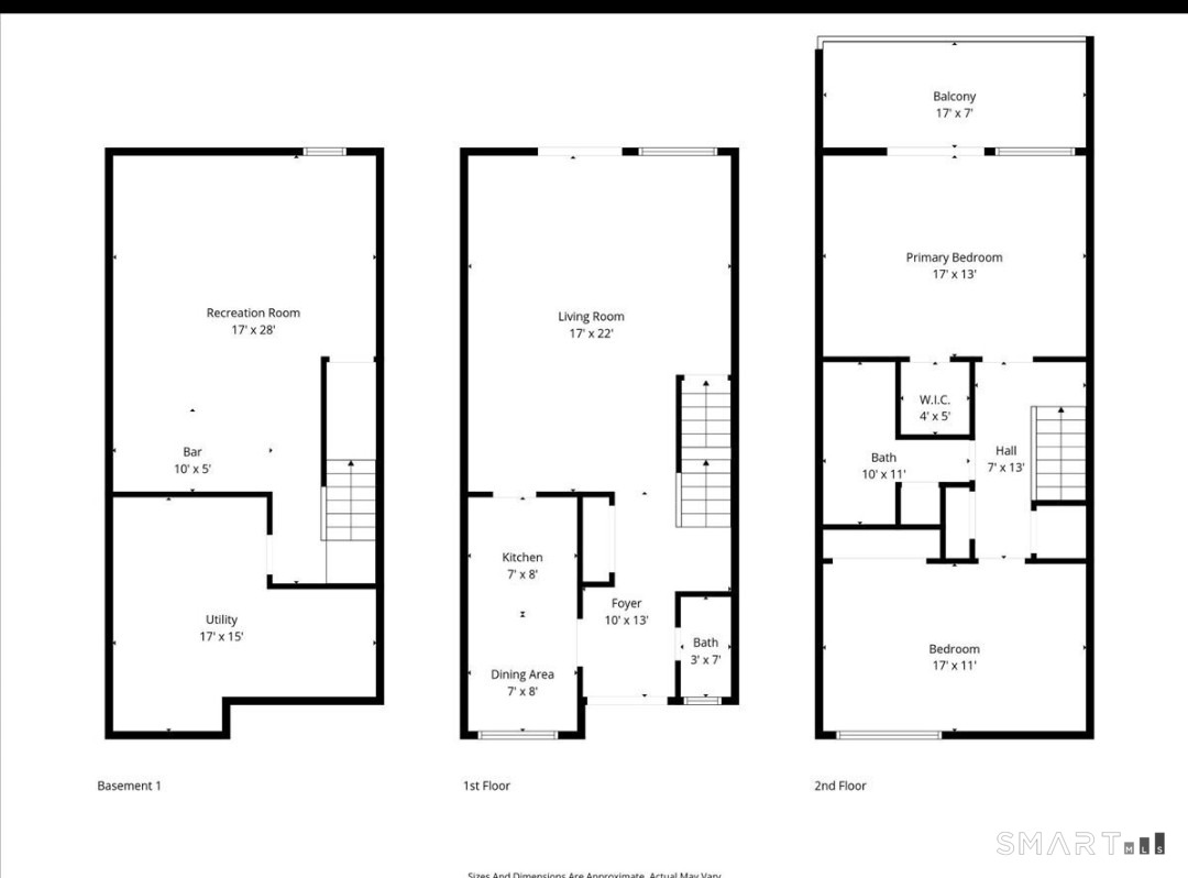
Welcome to this well-maintained townhouse condominium in the conveniently located Cromwell Hills community, offering the perfect blend of privacy and accessibility. Surrounded by peaceful woodland views yet ideally situated near major highways, shopping, and restaurants, this home delivers both tranquility and convenience. The main and upper levels feature hardwood floors throughout. The main level boasts a kitchen with tile flooring and a cozy breakfast nook and convenient half bath. Adjacent is a bright living and dining area with sliders that lead to an extended patio. Upstairs are two comfortable bedrooms along with a full bath featuring a tub and shower. The primary bedroom features a walk-in closet and private balcony. The finished basement adds valuable living space with built-in wall cabinetry, a separate room ideal for a home office, and a laundry room with additional storage. A wonderful opportunity to enjoy low maintenance living in a desirable, conveniently located community.

Continue reading ▾

Flood Risk Assessment

Location Analysis:
Inland Cromwell location
Water Proximity:
No direct water access
Topography:
Standard terrain
Recommendations:
  • Consult FEMA Flood Maps for accurate zone info
  • Consider flood insurance based on professional assessment
  • Evaluate property drainage during inspection
  • Review local flood history with town officials
Risk Level: Low

Minimal flood risk indicators. Verify with FEMA flood maps.

Walkability Score: calculating…
Motif Lifestyle Score: calculating…

Amenity Access Summary

  • Dining & Café Access: Low to Moderate
  • Daily Services: Limited
  • Recreational Space: Limited Nearby
How These Scores Are Calculated

These scores reflect the proximity and concentration of nearby amenities, measured against a typical town-center environment.

  • Walkability emphasizes access to daily necessities such as groceries, pharmacies, banking, and routine services.
  • Motif Lifestyle emphasizes dining, cafés, parks, and leisure destinations that contribute to neighborhood character and quality of life.

All scores are normalized on a 0–100 scale to allow consistent comparison across different locations.

29

Homes For Sale

$150,748

Average List Price

Mechanicals & Utilities: Baseboard • Electric • Ceiling Fans,Central Air • Public Water Connected water

Exterior Features

Exterior Construction: Vinyl Siding,Brick

Garage: Assigned Parking

Parking: 2 Total

Patio/Deck: Balcony,Patio

Pool: In Ground Pool

Utilities: Water: Public Water Connected

Only motif connects you to a certified
"Local Market Expert"

Agent Photo
George Antonopoulos
Real Estate Advisor
Cromwell • Connecticut Shoreline
Licensed Real Estate Agent – Connecticut
Broker Logo

 Verified Motif Advisor
Good morning George, I'm interested in
29 Mountain Laurel Court, Cromwell, Connecticut
By proceeding, you consent to receive calls and texts at the number you provided, and artificial voice, and email, from motif about your inquiry and similar properties. Your personal information will never be sold or given to a 3rd party.
Agent Photo
George Antonopoulos
george@appzentric.com
800-555-0001
Presented by motif • Source: MLS • Listed by: Maria Lisa Gagliardi • Coldwell Banker Realty • MLS# 24153492